Top Lage, Viel Platz & Komfort By Zermattstays
Preview only — see all hotel photos
See all 25 photos 1 /
25
9.7
3 σχόλια
Best options for your travel dates
Το ξενοδοχείο στο χάρτη
Top Lage, Viel Platz & Komfort By Zermattstays
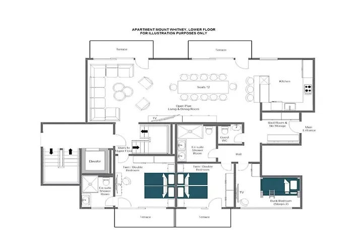
Το διαμέρισμα Top Lage, Viel Platz & Komfort By Zermattstays 167 τ.μ. Απέχει 20 λεπτά με τα πόδια από το Μάττερχορν.
Ο Σταθμός Gornergrat απέχει 4 χλμ. από αυτό το διαμέρισμα.
Αυτό το κατάλυμα προσφέρει στους επισκέπτες μπάνιο με στεγνωτήρα μαλλιών και σεσουάρ. Επίσης, έχει πλυντήριο.
Το διαμέρισμα Top Lage, Viel Platz & Komfort By Zermattstays παρέχει εξοπλισμένη μικρή κουζίνα εξοπλισμένη με φούρνο και πλυντήριο πιάτων για αυτοεξυπηρέτηση των επισκεπτών. Η πλησιέστερη στάση λεωφορείων είναι Vispa, η οποία βρίσκεται σε απόσταση μόλις 5 λεπτών με τα πόδια απο το διαμέρισμα.
Περισσότερα +
Λιγότερα -
Παρακαλώ περιμένετε, ψάχνουμε διαθέσιμα δωμάτια.
Αναζήτηση ξενοδοχείων
Ανέσεις
Βασικές Παροχές
- Wi-Fi
- Δεν επιτρέπονται κατοικίδια
Εγκαταστάσεις
Γενικά:
- Απαγορεύεται το κάπνισμα σε όλους τους χώρους
- Wi-Fi
- Δεν επιτρέπονται κατοικίδια
- Ανελκυστήρας
Ανέσεις δωματίου:
- Θέρμανση
Όροι ξενοδοχείου
Check-in: από 16:00 έως 23:59
Check-out: έως 10:00
Χάρτης
Τοπικά Αξιοθεατα
Αεροδρόμια
- Σιόν Αεροδρόμιο (77 χλμ.)
Σταθμοί τραίνων
- Σιδηροδρομικός Σταθμός Zermatt (200 μ.)
Αξιολογήσεις
Γράψτε σχόλιο
100% Αληθινά Σχόλια
9.7 /10